五大核心價值體系【軸芯】深港中軸門戶 ,都市核心新城【樞紐】雙軌交匯,4號線清湖站地鐵直連【文脈】書香環繞,幼小初全齡學校配套【旗
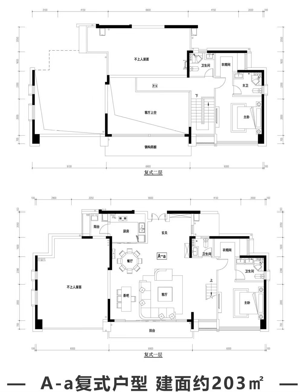
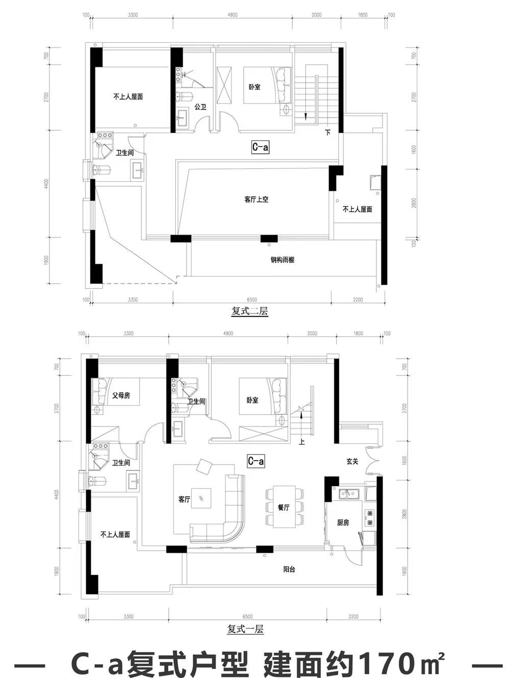
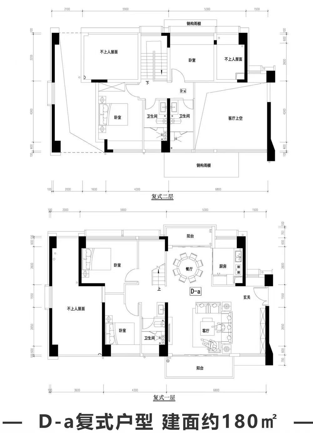
房屋戶型:2室 、3室 、4室 、
住宅類型:精裝修
區域:深圳市龍華區龍華街道和平路與清龍路交匯處
最新開盤:2021.11.24
立即咨詢
24小時咨詢熱線:13267179661
五大核心價值體系
【軸芯】深港中軸門戶 ,都市核心新城
【樞紐】雙軌交匯,4號線清湖站地鐵直連
【文脈】書香環繞,幼小初全齡學校配套
【旗艦】約24萬方城芯旗艦綜合體
【匠心】匠心鑄造,塔尖品質,約95-207㎡臻裝美宅





















服務熱線:何詠斌 聯系方式:13267179661
